22-23 // E4 //
LOCUIREA PENTRU O PERSOANĂ

Machete
Casă ascunsă
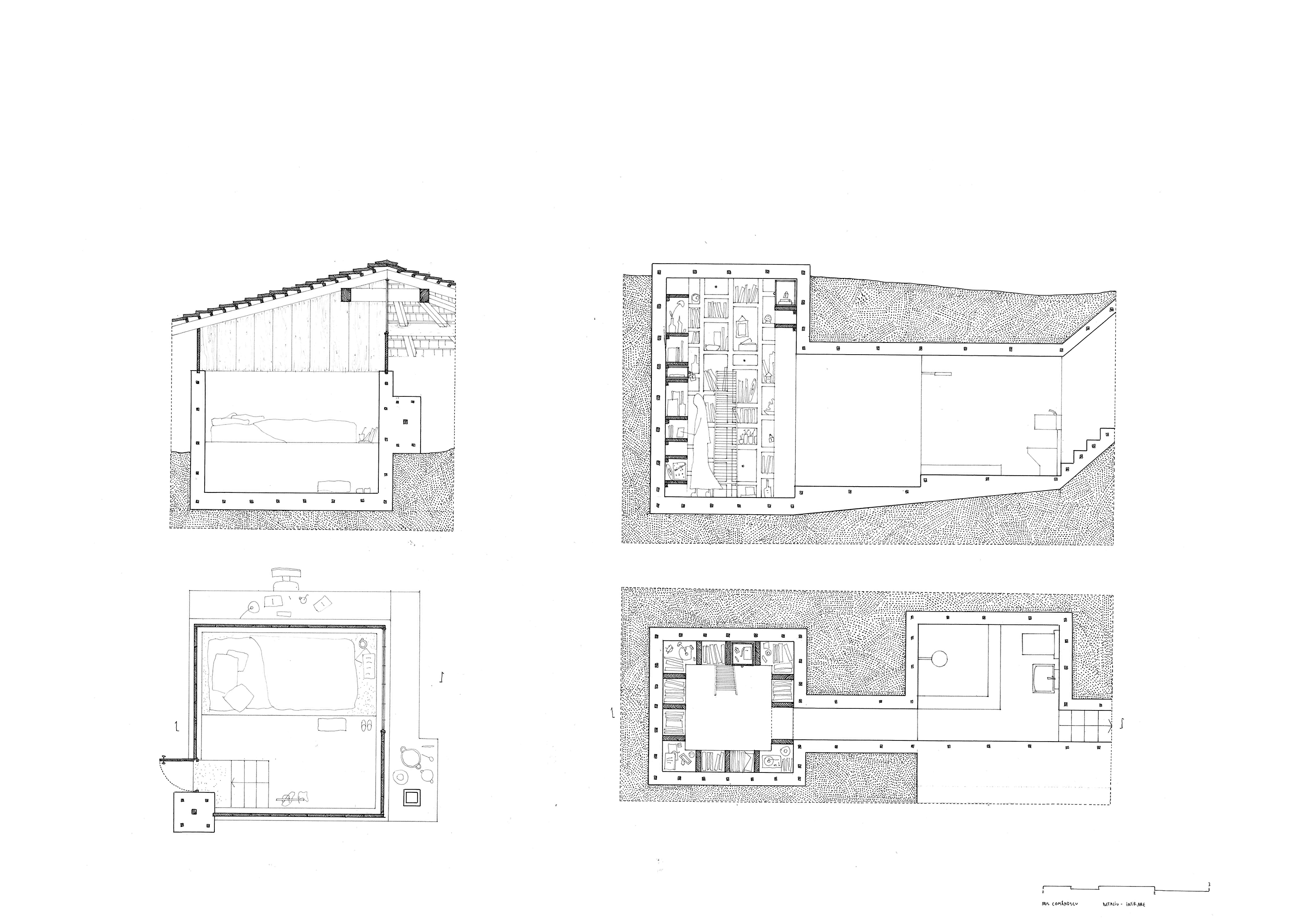
Iris Comănescu
Iris Comănescu


Casă turn
Isabela Chirică
Isabela Chirică
Casă ascunsă
Timea Cristea
Timea Cristea
Casă cu grădină
Andrei Păsărică
Andrei Păsărică
Casă cu ziduri groase
Denisa Popa-Becheru
Denisa Popa-Becheru
Casă lungă
Rebecca Tomoială
Rebecca Tomoială
Casă ascunsă
Elena Conțeanu
Elena Conțeanu

Casă cu stâlpi
Andrada Neagu
Andrada Neagu

Casă turn
Teodora Iacob
Teodora Iacob

Casă lungă
Andrei Țițeică
Andrei Țițeică
Casă în trepte
Alexandru Rădulescu
Alexandru Rădulescu
