︎
ALL
|
19-20
|
20-21
|
21-22
|
22-23
|
23-24
|
24-25 |
ATELIER
PREZENTĂRI
ECHIPA
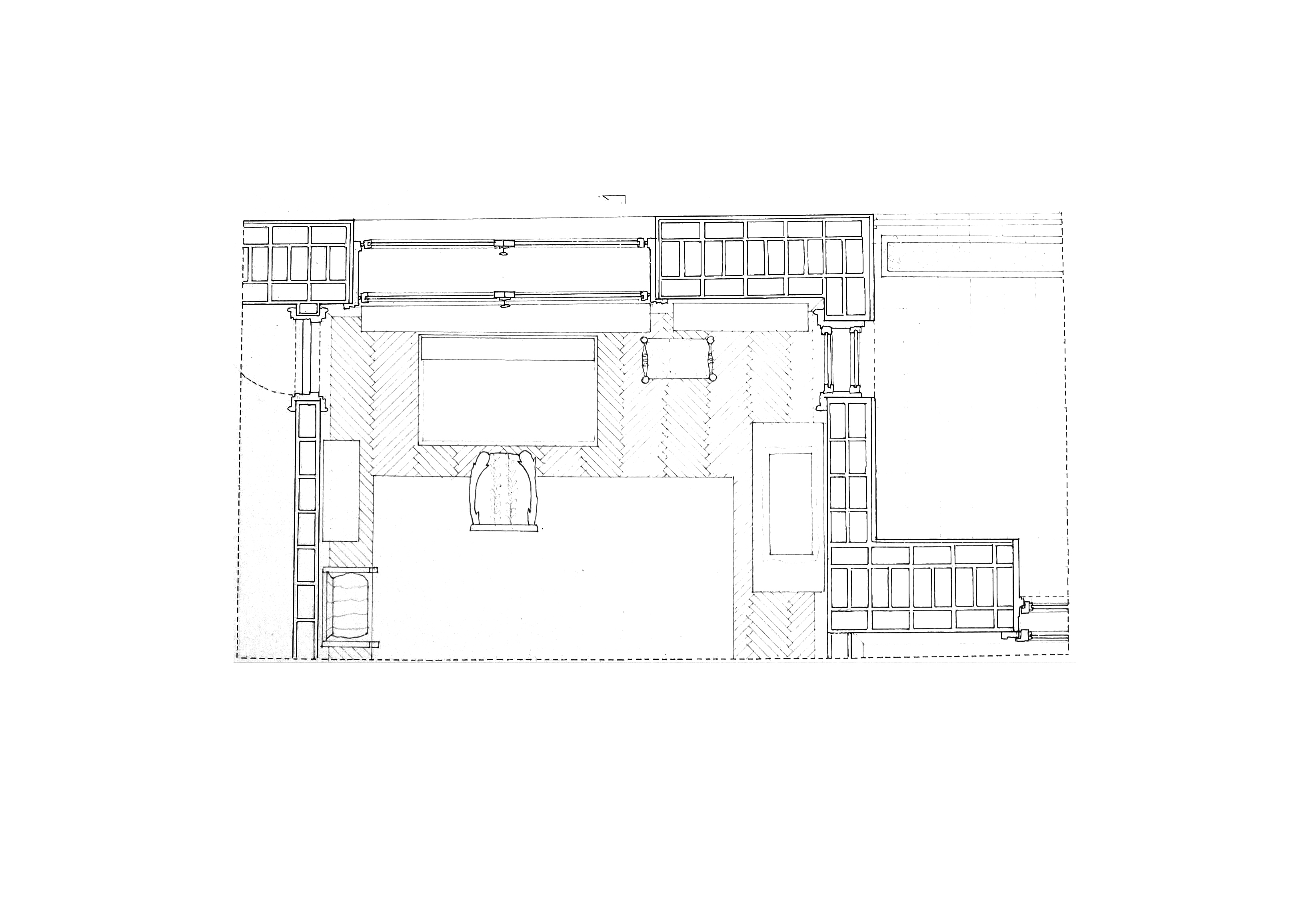
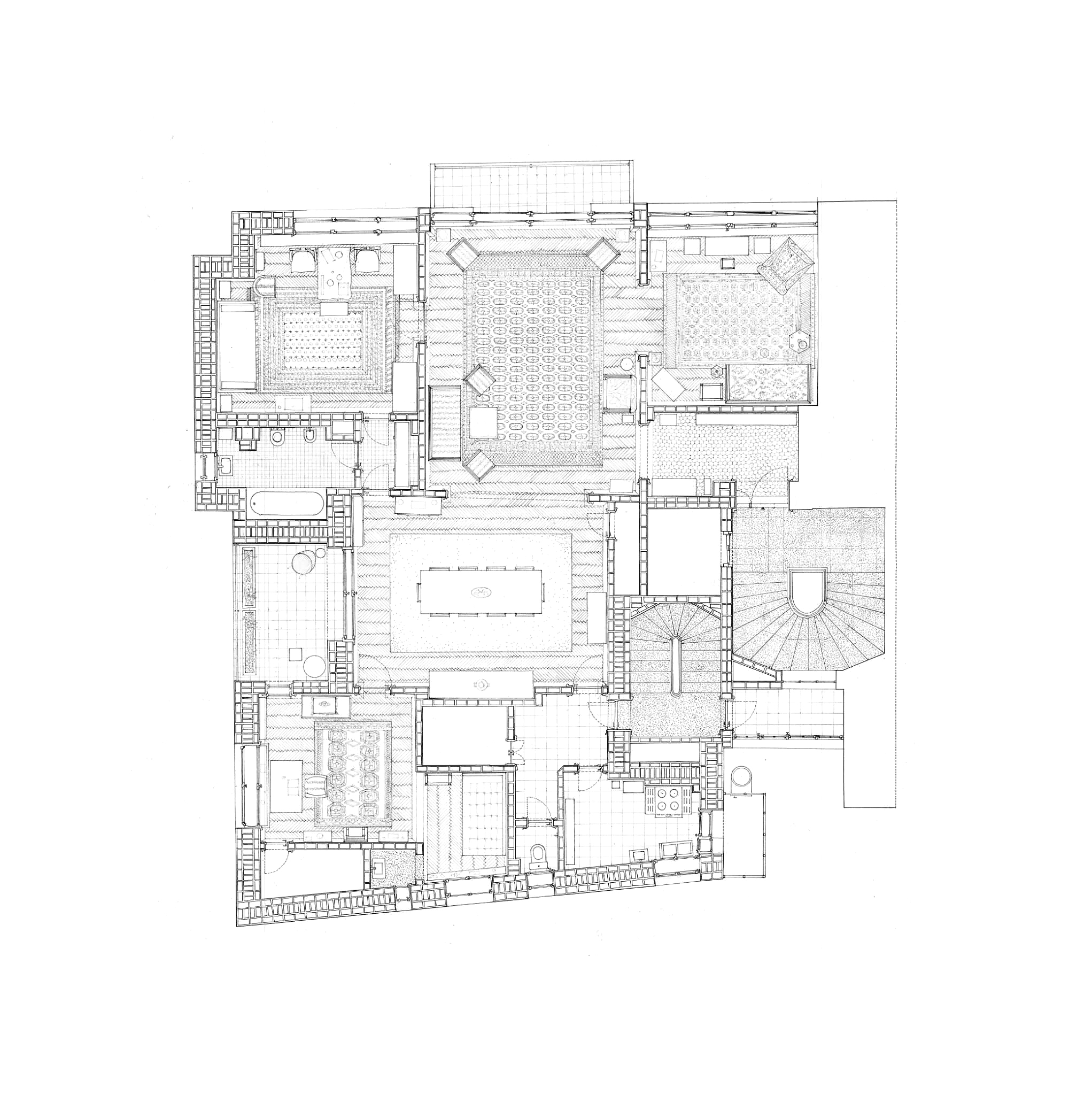
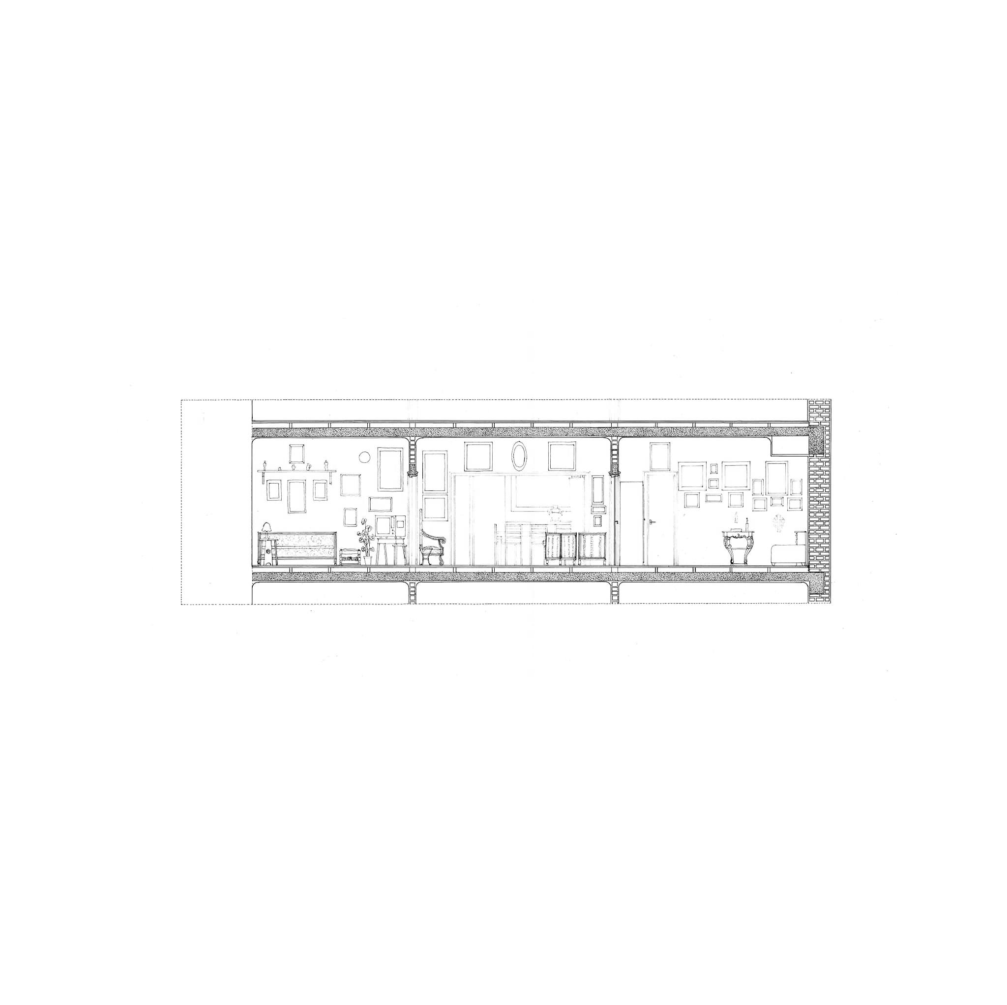
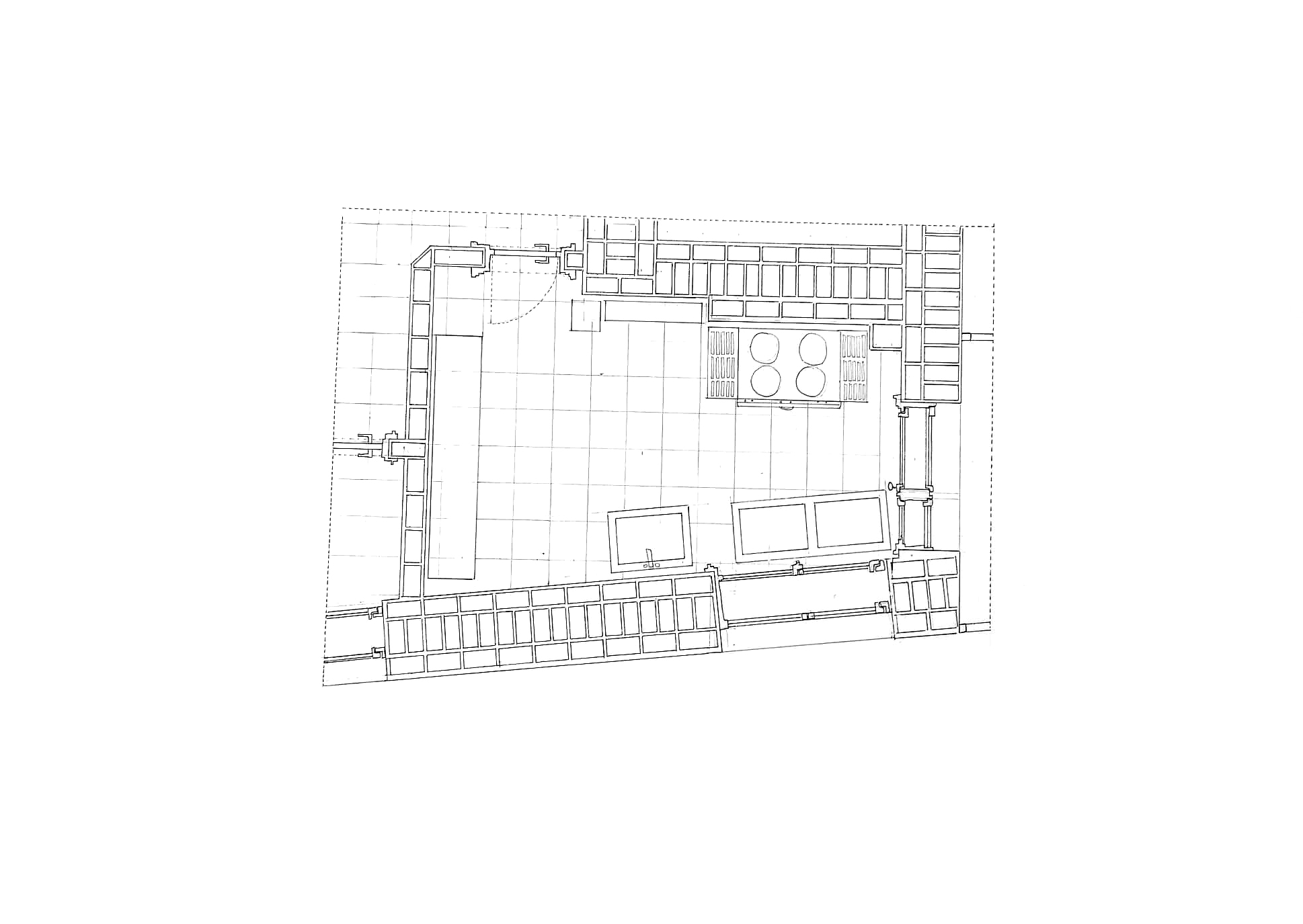
22-23 // PRACTICĂ // CASE MEMORIALE
Casa Memorială Ion Minulescu și Claudia Milian, București, România
Iris Comănescu, Andrada Neagu, Andrei Păsărică, Rebecca Tomoială
︎︎︎
︎︎︎