︎
ALL
|
19-20
|
20-21
|
21-22
|
22-23
|
23-24
|
24-25 |
ATELIER
PREZENTĂRI
ECHIPA
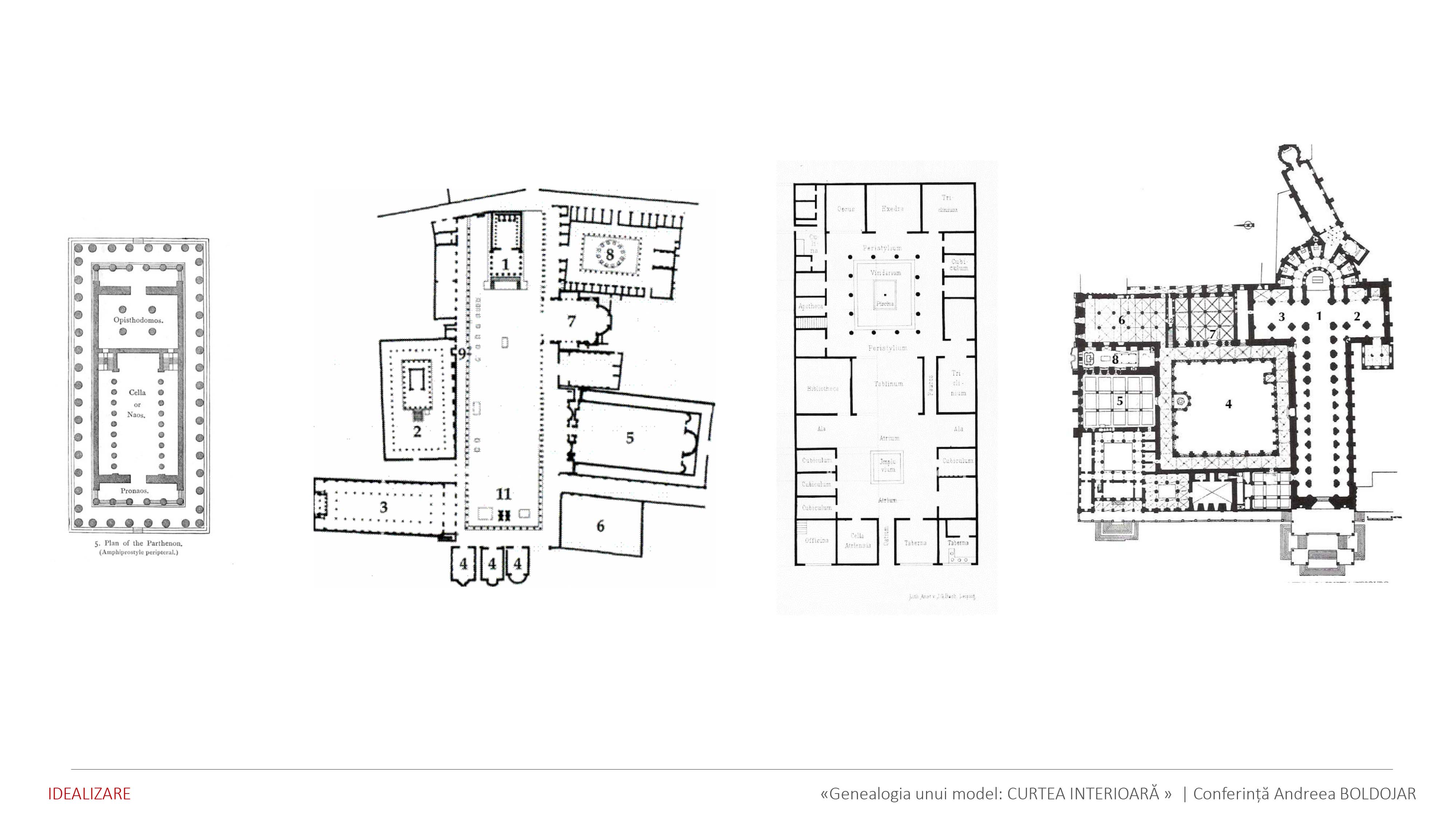
23-24 // E2 // Genealogia unui model | curtea interioară
Genealogia unui model | curtea interioară
Andreea Boldojar