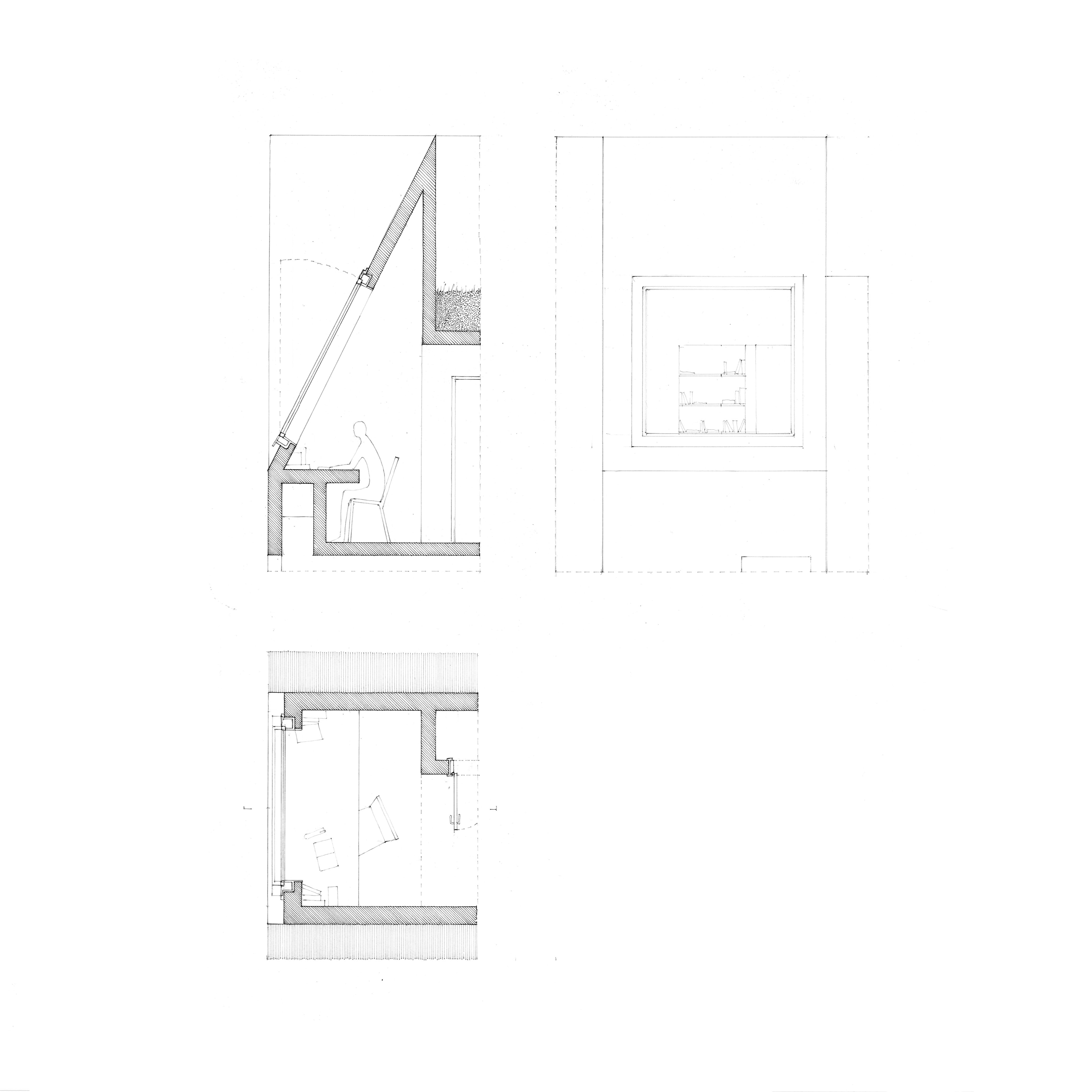
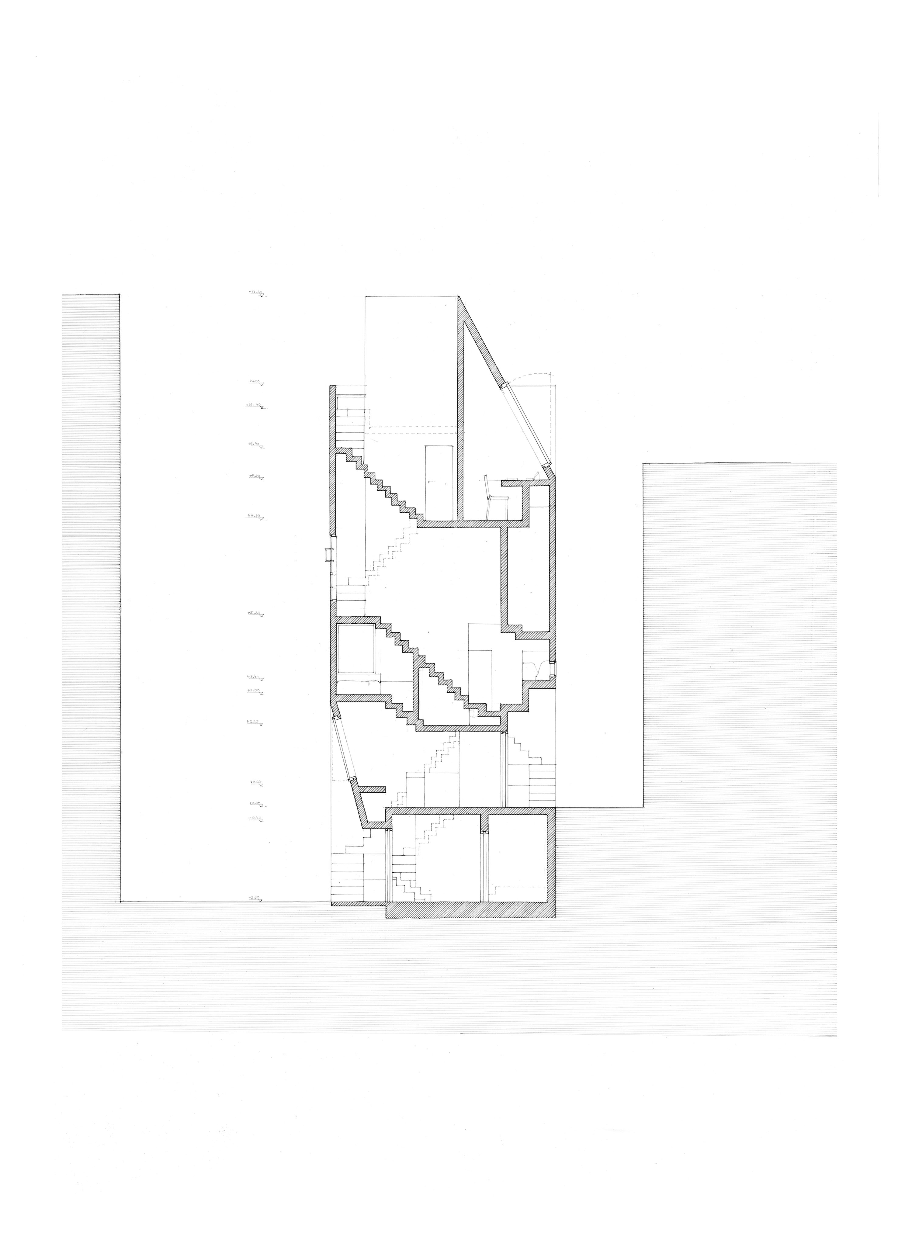
23-24 // E4 // HOUSE FOR ONE


























Petruța Pănescu
















Crina Ioniță










Cătălina Stancu

















Ioana Otobîcu






















Andreea Zigu





Miruna Șchiopu




Cosmin Mărgărit



Mihăiță Grigore-Jinga















︎︎︎               ︎︎︎