24-25 // E4 // HOUSE FOR ONE


Thinking a dwelling for a single person is a far more complex undertaking than it may initially seem, because it allows us to abandon every convention and forces us to reopen all questions. Making a smaller house does not imply simplification, but a confrontation with canons and with the automatisms of reflexive gesture.
The assignment proposes a series of “characters” as possible roots of the house: the tall house, the house on columns, the house with a garden, etc., this time as filters for the models associated with the study. Grasping the true nature of this character, beyond its immediate translation into the concrete, makes possible a specific hypothesis of dwelling, that is, one detached from the generic, the accidental, the common, in the sense of the non-descript. Dwelling emerges only when the anonymous disappears. And so does the house, for space itself can no longer be standardized, normalized, prefabricated. It suddenly acquires another dimension. And material and structure will remain the only elements capable of giving it form and depth.
The character and, implicitly, the mode of dwelling associated with it will also shape the place. Place, such an essential subject in architecture, appears here for the first time in the first year,yet not as an imposed reality, but as a conscious imagining. It is made, just as the house is made, and only together do they reveal the measure of their own truth. To place “site” before “house” in the usual sense of the design process would strip the character of its guiding nature and distort the entire search.
Paradoxically, the place appears all the more authentic, more plausible, more beautiful, the more closely it follows and listens to the house. Such an embodiment could become, in the years to come, the seed of a profound understanding of the need to seek that substantial, truly relevant way of anchoring a house (any house) in its place.
at the forest’s edge, where the slope levels, a tall open loggia confronts the field’s void
Sofia Luca
Sofia Luca
a reimagined certosa. a garden of solitude, enclosed by four walls.
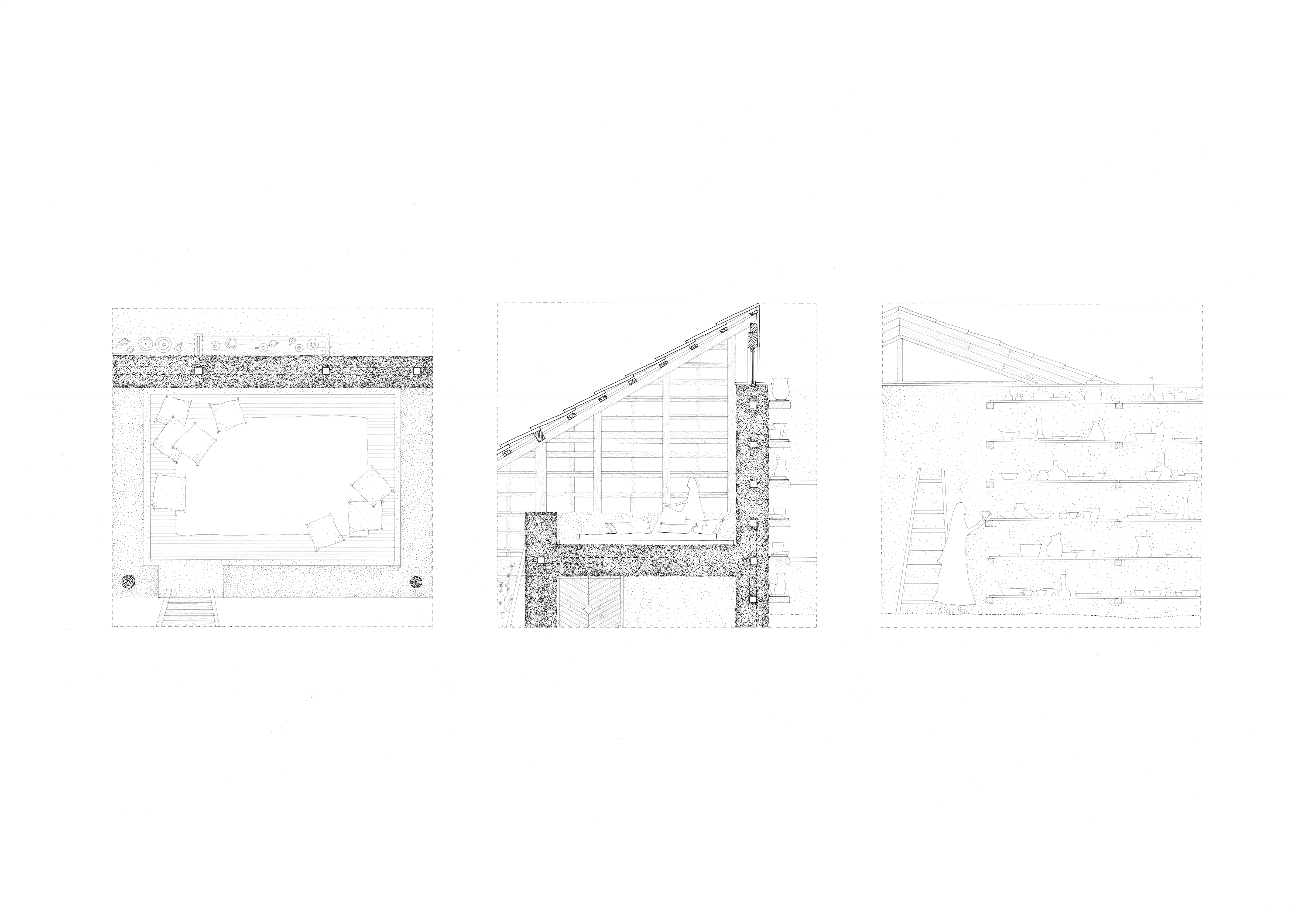
one to strenghten the certosa's cloister, one to hold the garden, two for monks to inhabit the thickness the wall
Viorela Stîngaciu
one to strenghten the certosa's cloister, one to hold the garden, two for monks to inhabit the thickness the wall
Viorela Stîngaciu

Iarina Olteanu



Alexandru Solomon
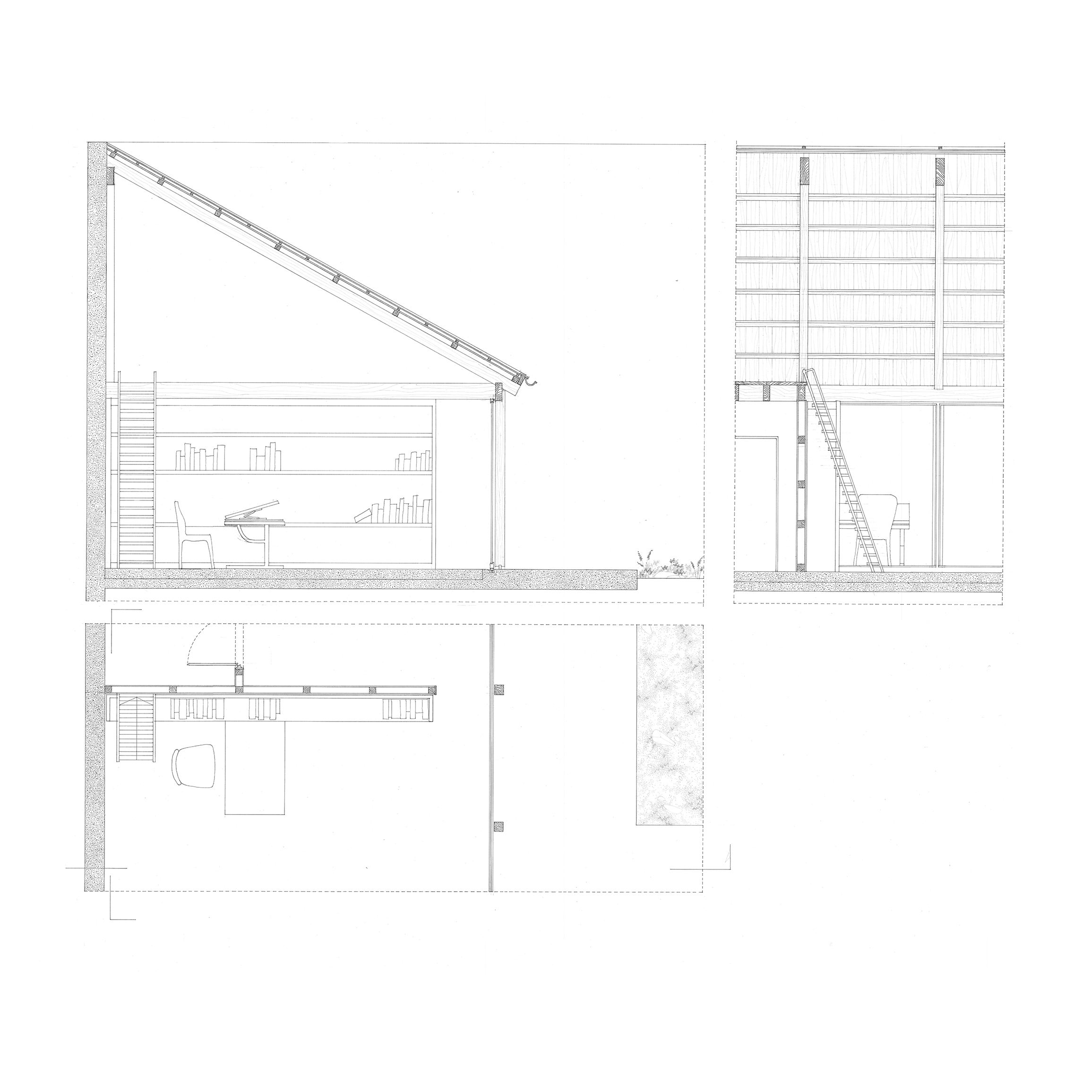
space bends around a central wall, making the house feel twice as long
Ilinca Radu
Ilinca Radu
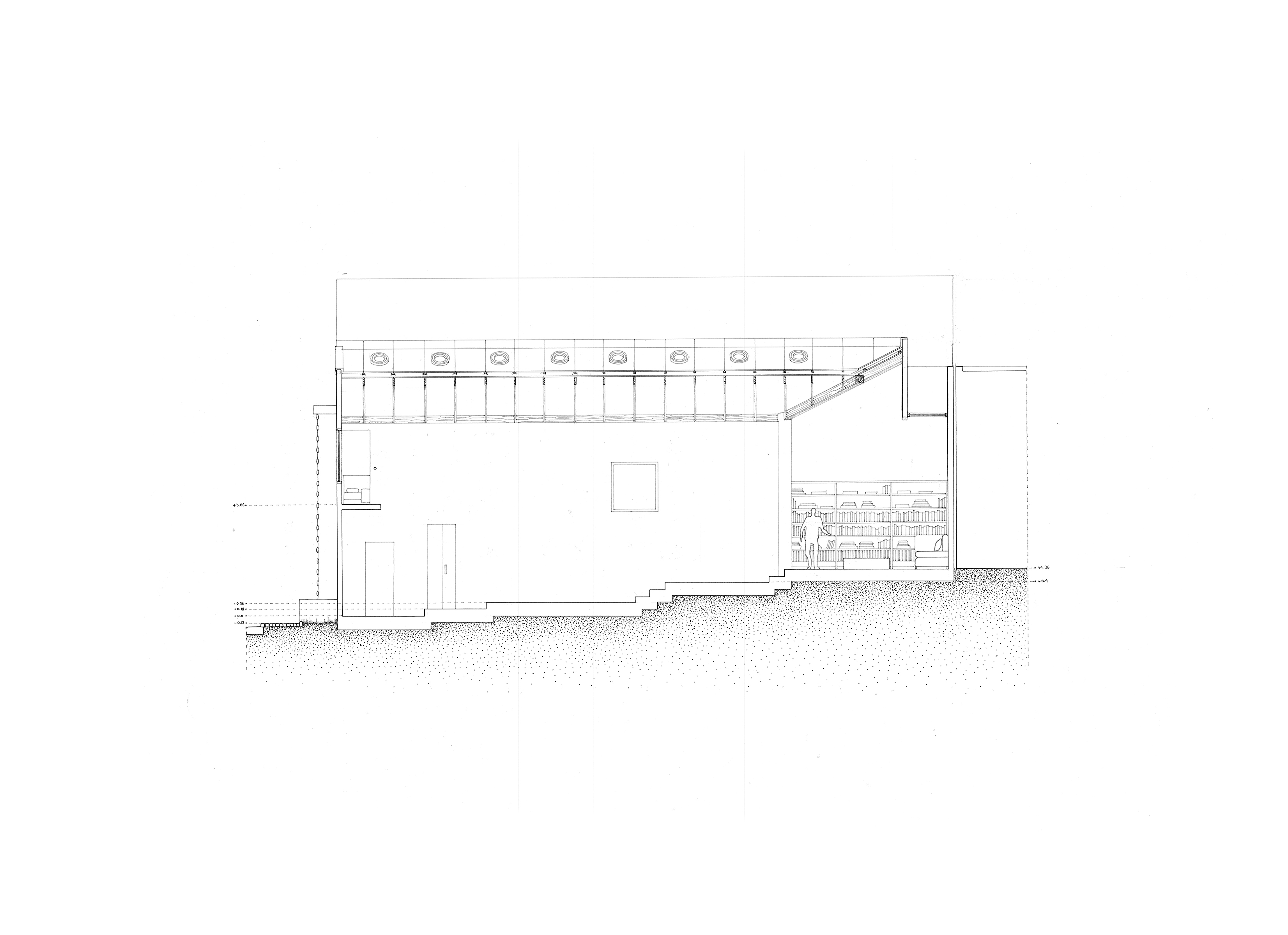
house between one roof and ruins
Rebeca Bîrsășteanu
Rebeca Bîrsășteanu
two gardens hidden behind high walls
Liana Paraschiv
Liana Paraschiv
within the thick grain of an imagined city, a quiet courtyard appears
Irina Roșca
Irina Roșca
a tall, narrow vaulted space arches around a small square courtyard. from its stillness, the long garden unfolds
Maria Dumitru
Maria Dumitru

